| [ 索引号 ] | 11500231MB1676168M/2025-01476 | [ 发文字号 ] | |
| [ 主题分类 ] | 建设规划 | [ 体裁分类 ] | 规划 |
| [ 发布机构 ] | 垫江县规划自然资源局 | [ 有效性 ] | |
| [ 成文日期 ] | 2025-10-13 | [ 发布日期 ] | 2025-10-13 |
重庆市垫江县人民医院三级甲等综合医院(一期)建设工程设计方案调整公示
重庆市垫江县人民医院三级甲等综合医院(一期)建设工程设计方案调整公示
重庆市垫江县人民医院及相关利害关系人:
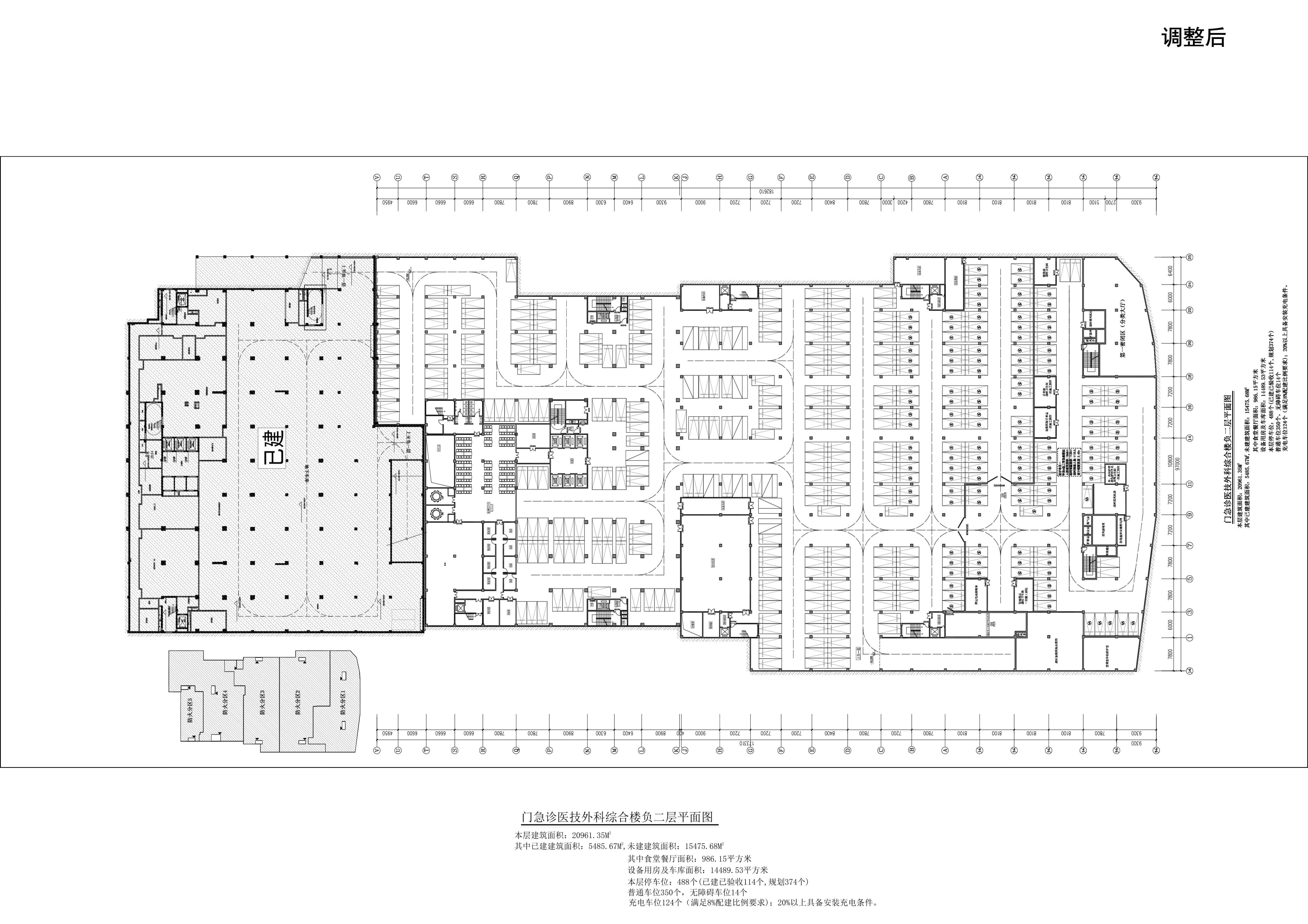
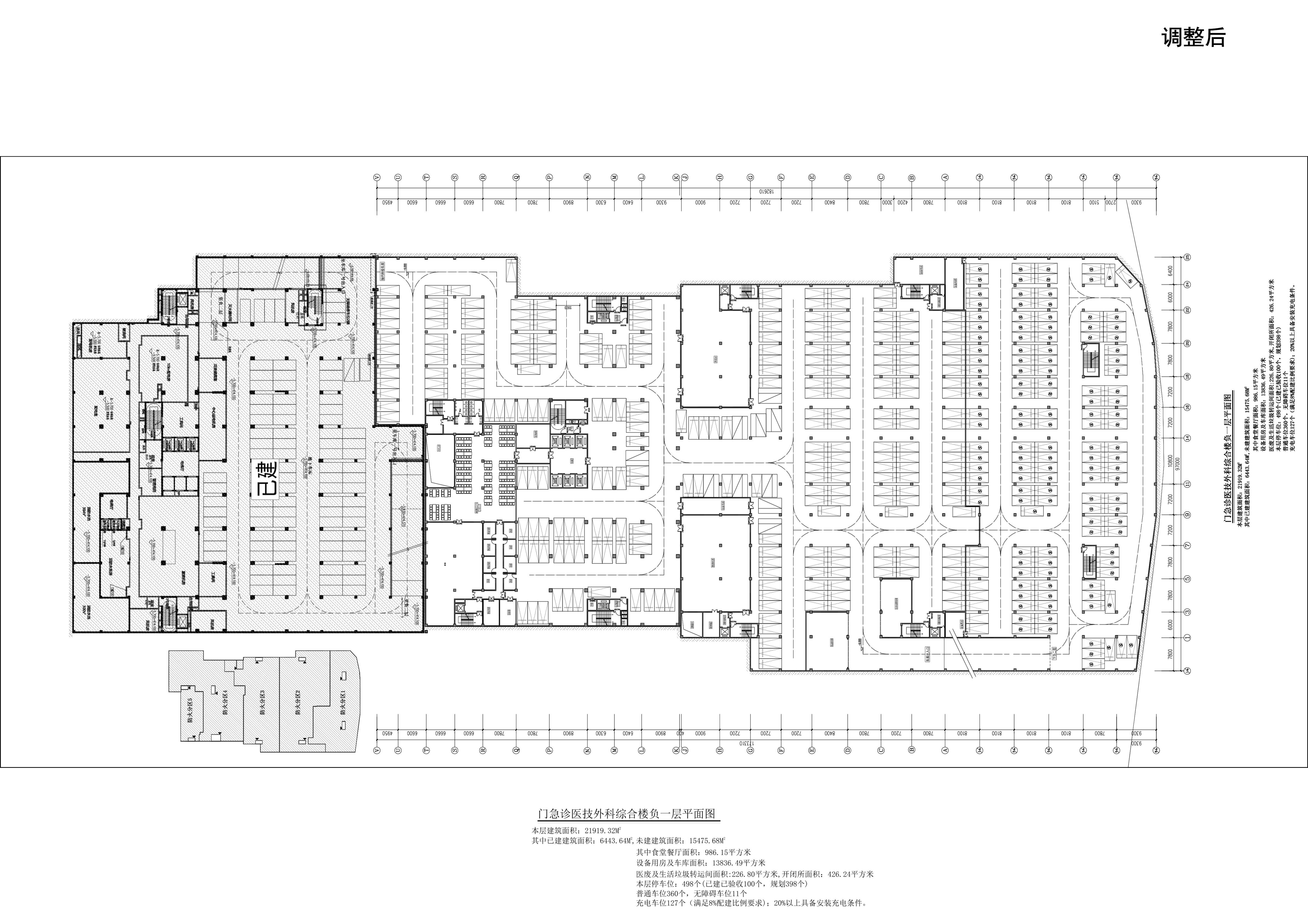
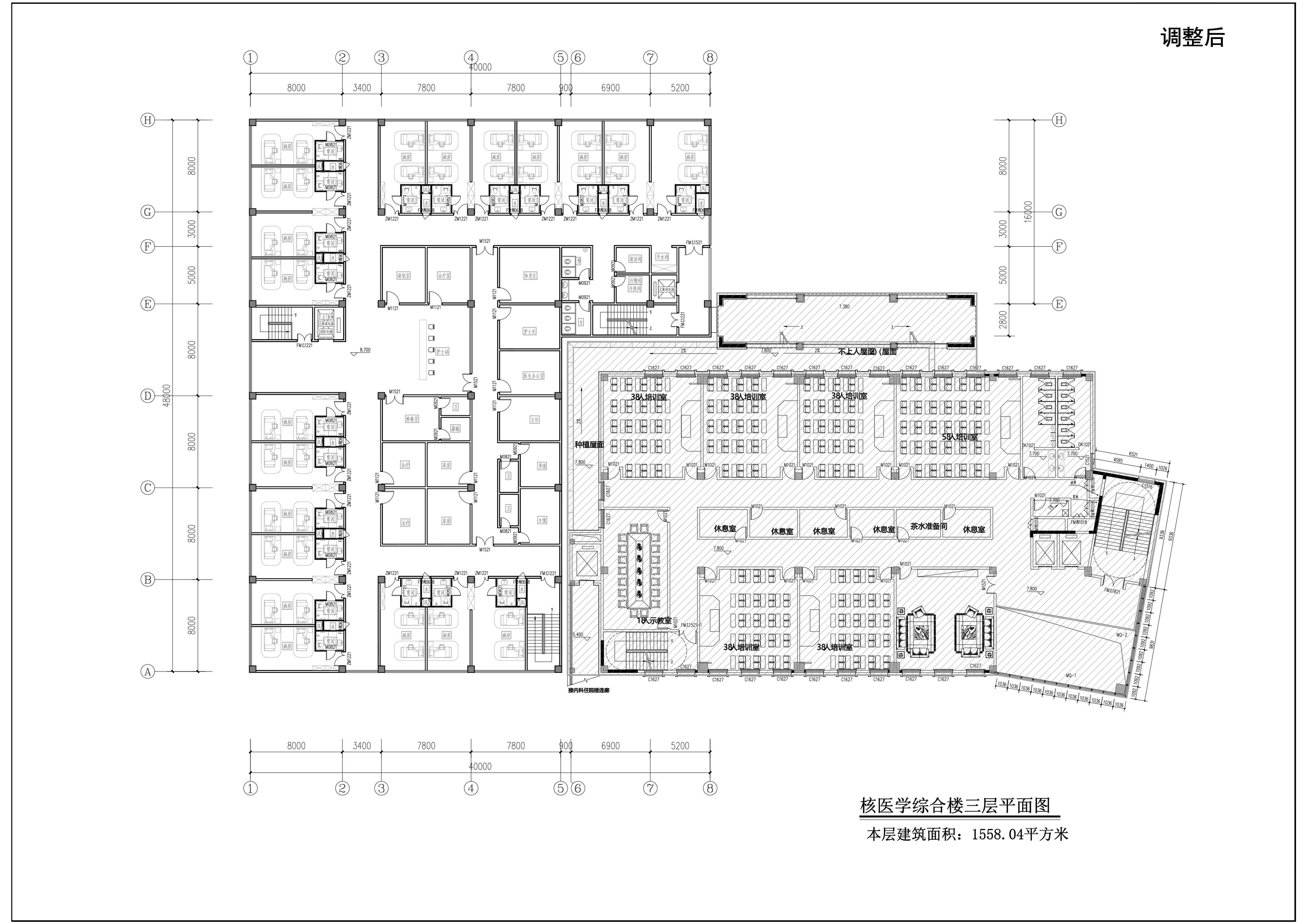
重庆市垫江县人民医院三级甲等综合医院(一期)建设项目位于垫江县桂溪街道北新西路南侧、桂东大道西侧。原设计方案于2016年4月通过审查。根据医院的发展规划,项目分期实施,已完成内科楼、放疗及培训中心楼的建设,并投入使用。现根据区域综合性医院定位、三甲综合性医院功能使用需求,对原设计方案进行调整,调整主要内容如下:
一、调整内容:1.优化平面功能布局,加强医技功能的联系,门急诊医技综合楼和外科住院楼采取拼接设计,拼接后在桂东大道一侧留出开敞空间。将门急诊综合楼(8F)调整为门急诊医技综合楼(4F),科技综合楼(13F)调整为外科住院楼(19F),感染病楼(3F)调整为核医学综合楼(3F);2.优化内部交通组织,充分衔接院区已成型的车行出入口及内部交通网络;3.优化负1F、负2F车库平面设计,按现行相关技术规定配置停车位。
二、经济技术指标:项目设计方案调整后各项经济技术指标满足规划条件要求。
公示单位:垫江规划和自然资源局
公示时间:2025年10月13日-2025年10月19日
公示地点:重庆市垫江县人民医院
垫江县规划和自然资源局
垫江县人民政府公众信息网
若你单位或个人有意见和建议,请注明身份(单位名称、机构代码证及法定代表人身份证明/个人姓名及身份证复印件)、联系电话和邮寄地址,将书面意见、房产证(购房合同)等证明涉及其利害关系的材料邮寄(在信封正面注明“公示反馈意见”字样,提交时间以邮局收件邮戳载明的时间为准)或直接提交至垫江县规划和自然资源局。意见反馈期限截止至公示期届满后5个工作日内(2025年10月20日-2025年10月24日)。规定期限内未反馈意见的,视为同意方案调整事宜或自动放弃权利。
相关利害关系人可自公示期满之日起五个工作日内,向垫江县规划和自然资源局提出书面听证申请,并提交房产证(购房合同)等涉及其利害关系的材料。逾期未提出的,视为自动放弃听证权利。
书面意见反馈通讯地址:垫江县规划和自然资源局建设工程规划科
邮编:408300 联系人: 蒋老师 咨询电话:023-74684662














垫江县规划和自然资源局
2025年10月13日

