| [ 索引号 ] | 11500231MB1676168M/2025-01566 | [ 发文字号 ] | |
| [ 主题分类 ] | 建设规划 | [ 体裁分类 ] | 规划 |
| [ 发布机构 ] | 垫江县规划自然资源局 | [ 有效性 ] | |
| [ 成文日期 ] | 2025-10-28 | [ 发布日期 ] | 2025-10-28 |
洺玥府建设工程设计方案调整公示
洺玥府建设工程设计方案调整公示
垫江县丰厚实业有限公司、洺玥府项目业主及相关利害关系人:
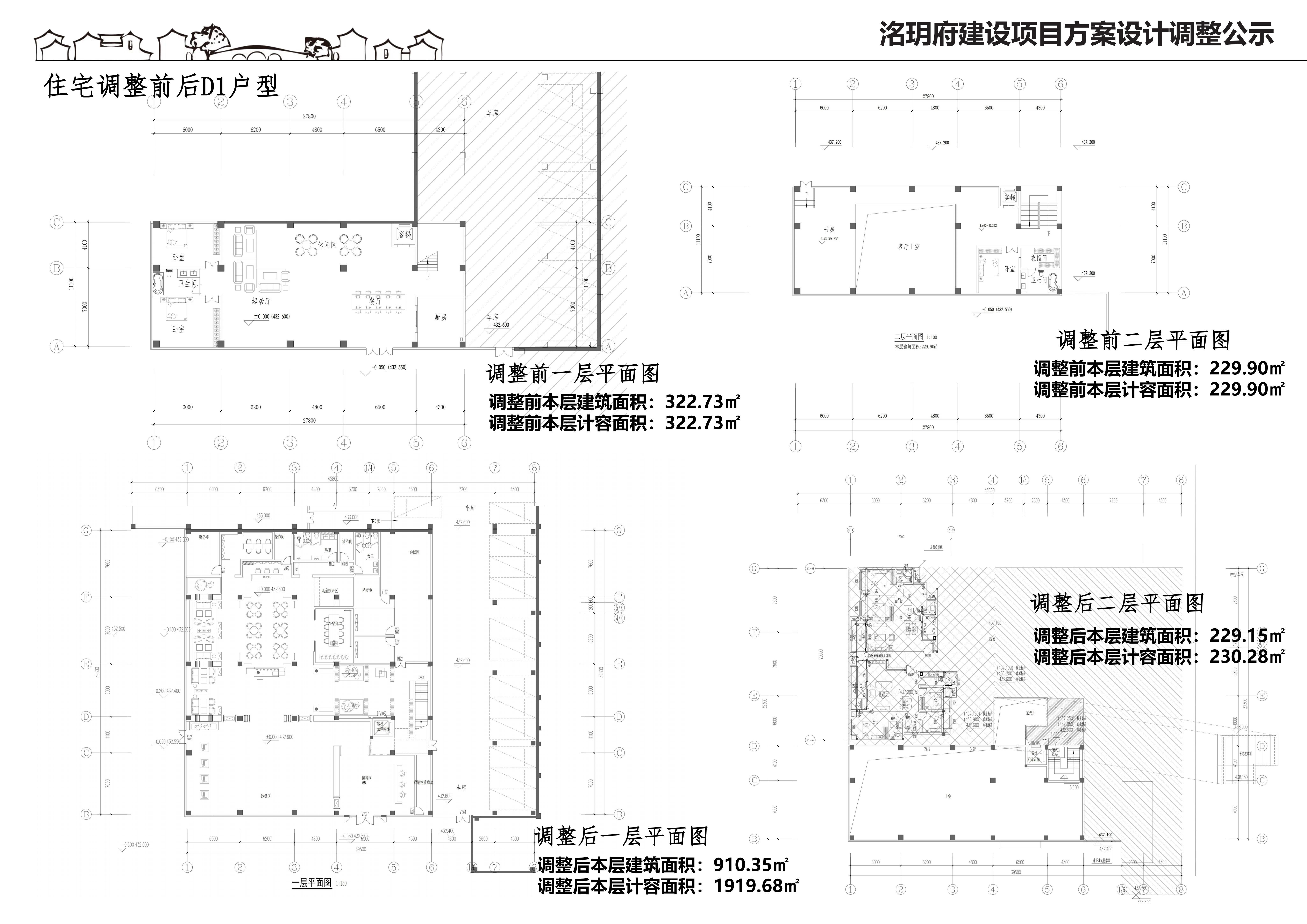
洺玥府建设项目位于垫江县桂阳街道明月大道西侧。由于房地产市场发展较快,第四代立体绿化住宅已成为改善房源,为提升住房品质,满足购房者更高的需求,结合市级支持实施高品质住宅发展等相关政策文件,建设单位申请对原设计方案A区二期和BC区三期、D1#楼进行优化调整。调整主要内容如下:
一、调整内容:1.优化建筑平面布局,A区二期由4栋(8F)普通住宅调整为4栋(7F)和2栋(8F)立体绿化住宅,BC区三期由8栋(3F)低层住宅和4栋(8F)普通住宅调整为8栋(8F)立体绿化住宅,同步优化A区二期和BC区三期对应地下车库范围线;2.优化D1#楼平面功能布局;3.优化内部交通组织,充分衔接小区已形成的车行出入口和内部交通网络;4.按现行相关技术规定配置停车位。
二、经济技术指标:项目设计方案调整后各项经济技术指标满足规划条件要求。
公示单位:垫江县规划和自然资源局
公示时间:2025年10月28日-2025年11月3日
公示地点:项目售楼部和小区大门处
垫江县规划和自然资源局
垫江县人民政府公众信息网
若你单位或个人有意见和建议,请注明身份(单位名称、机构代码证及法定代表人身份证明/个人姓名及身份证复印件)、联系电话和邮寄地址,将书面意见、房产证(购房合同)等证明涉及其利害关系的材料邮寄(在信封正面注明“公示反馈意见”字样,提交时间以邮局收件邮戳载明的时间为准)或直接提交至垫江县规划和自然资源局。意见反馈期限截止至公示期届满后5个工作日内(2025年11月4日-2025年11月10日)。规定期限内未反馈意见的,视为同意方案调整事宜或自动放弃权利。
相关利害关系人可自公示期满之日起五个工作日内,向垫江县规划和自然资源局提出书面听证申请,并提交房产证(购房合同)等涉及其利害关系的材料。逾期未提出的,视为自动放弃听证权利。
书面意见反馈通讯地址:垫江县规划和自然资源局建设工程规划科
邮编:408300 联系人: 蒋老师 咨询电话:023-74684662
垫江县规划和自然资源局
2025年10月28日




















