桂阳街道桂溪镇新桂街1栋2单元各业主、相关利害关系人:
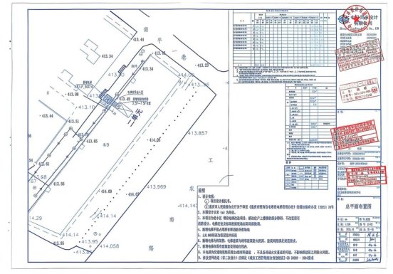
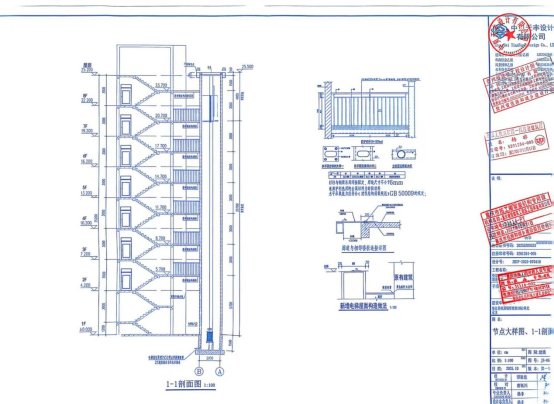
桂阳街道桂溪镇新桂街1栋2单元位于桂溪镇新桂街小区内,根据《重庆市既有住宅增设电梯管理办法》,该单元业主向桂阳街道申请对现有住宅增设电梯,通过对申请资料的审核及既有住宅增设电梯联合审查小组现场踏勘,拟具备增设电梯的条件。现将书面申请书、授权委托书、施工图(总平面图、平面图、立面图、剖面图)、房屋结构安全论证、消防技术标准说明、业主书面同意书、增设电梯费用分担协议,进行现场公示、公开征求利害关系人意见。
公示单位:垫江县人民政府桂阳街道办事处
公示时间:2025年10月29日—2025年11月4日
公示地点:1.重庆市垫江县人民政府网
2.增设电梯住宅单元出入口(桂溪镇新桂街1栋2单元)
若你单元个人有意见和建议,请注明身份(个人姓名及身份证复印件)、联系电话和邮寄地址,在2025年11月7日前将书面意见等证明涉及其利害关系的材料邮寄或直接提交至垫江县人民政府桂阳街道办事处。逾期未提出的,视为同意增设电梯事宜或自动放弃权利。
相关利害关系人可自公示期满之日起三个工作日内,向垫江县人民政府桂阳街道办事处提出书面听证申请,并提交相关证明涉及其利害关系的材料。逾期未提出的,视为自动放弃听证权利。
垫江县人民政府桂阳街道办事处地址:垫江县桂南大道166号
邮编:408300
联系人:周老师,联系电话:023-74508691
垫江县人民政府桂阳街道办事处
2025年10月29日












